46平方米精雕细琢 全家人住住很乐胃(图)
来源:杭州网 作者:周丹红 2009-08-31 14:12:00
费三元
挑战户型
这是一套经济适用房,建筑面积为62平方米,实际面积只有46平方米,南北通风,框架结构,原始
设计为两室两厅,但各空间都比较小,卫生间反而相对大一点。
业主是一对刚结婚还没有孩子的年轻夫妻,未来一年内考虑生孩子。父母在外地,偶尔会过来居住。女主人从事文字工作,男主人爱好网络游戏,需要独立的上网、工作区。业主说,这46平方米的空间并不太够用,可轮到他们选经济适用房的时候已经没有更大面积的了,才不得不选了这个户型。
业主要求
1.卫生间设置淋浴区即可,最好能从中省出点空间给主卧或者是客厅。
2.客厅最好有个休闲区,能实现上网、看电视、看书等功能。
3.小房间可以考虑和客厅打通(显得客厅大一点),但打通后小房间依旧独立,可做儿童房或者临时客房。
4.尽可能增加储藏柜。
5.务必考虑到外地父母留宿时的卧铺问题。
6.可以包阳台的话,如何充分利用阳台空间,洗衣机摆放在阳台还是卫生间也请务必帮忙慎重考虑。
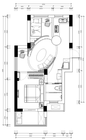
1 号挑战方案
用一个椭圆贯穿整个区域
1.厨房:刚好处于椭圆的小圆弧处,开放式处理,与椭圆连接处做一个与厨房操作台相连的圆形吧台,可供2—3人用餐。
2.次卧(儿童房):客厅借用了它的局部空间,电视柜与儿童房设计连成一体,地面抬高20cm处理。建议客厅和次卧之间用布帘相连,有利于采光和通透性。
3.客厅:设计师充分利用原客厅角落位置,设计了一个带有写字台的休闲区,边上可做一个书柜。
4.主卧:门洞调整到与休闲区相对的位置,卧床改变朝向。由于客厅的巧妙处理,主卧面积自然得以扩大,足以摆下1.8米宽的床与连体衣柜。
挑战者:D&D设计机构设计师高斐
这个方案表面上看起来中规中矩,你得细心看才能发觉设计师各个空间的设计用意。
次卧分成两部分 主卧向客厅扩张

2 号挑战方案
次卧分成两部分 主卧向客厅扩张
1.次卧:分成阅读区和地台区,两部分以布帘为隔断。而客厅与书房则用木条装饰成的半通透装饰墙为隔断(这同时也是电视机背景墙)。
2.玄关:由进门右手边的鞋柜和正对着进门处的软隔断(布帘、珠帘等)组成。建议鞋柜做成上下两组柜体式,中间部分空出来以放钥匙等杂物。
3.卫生间:干区与餐厅间做一个靠墙的做到顶的柜子,柜子分成上下两部分,上部分柜门朝向餐桌,下部分柜门与洗手台同面(做一般的储物柜)。
挑战者:独立设计师少数
挑战设计师再三强调,这个方案最好做成日式风格,这样才能体现设计细节的妙处,因为他借用了很多日式元素来解决布局难题。
用一组移门和榻榻米解决小空间难题

3 号挑战方案
用一组移门和榻榻米解决小空间难题
1.次卧(儿童房):抬高40厘米,整个地面都做成40厘米高的类似榻榻米的地台(这是全家的主要储物场所),在地台下方可做一组抽往客厅方向的抽屉柜。整个空间分成卧床和写字台、衣柜三部分,卧床旁边再做一组储物柜(没人睡的时候用来搁被子)。此外,写字台下搁脚的地方不需要做高40厘米,人直接坐在地台上,这样就可省去一把椅子。
2.客厅:最大的亮点就是沙发背后的一组移门,它们既是次卧、厨房的内门,又是沙发背景墙。这组移门平时全都可以移到沙发背后去,厨房、儿童房与客厅就成为连通的空间了。
3.卫生间:门洞改为朝向客厅(原门洞朝向餐厅可能影响食欲),而原门洞位置则可以做一组餐边柜。
4.主卧:内墙不动,与阳台连为一体。阳台分成两部分,一部分为洗衣区(用玻璃做隔断),另一部分为上网工作区。电视机背景墙往卫生间方向后移,借用卫生间空间形成一个凹形背景墙。
大众网版权与免责声明
1、大众网所有内容的版权均属于作者或页面内声明的版权人。未经大众网的书面许可,任何其他个人或组织均不得以任何形式将大众网的各项资源转载、复制、编辑或发布使用于其他任何场合;不得把其中任何形式的图片切换散发给其他方,不可把这些信息在其他的服务器或文档中作镜像复制或保存;不得修改或再使用大众网的任何资源。若有意转载本站信息资料,必需取得大众网书面授权。
2、已经本网授权使用作品的,应在授权范围内使用,并注明“来源:大众网”。违反上述声明者,本网将追究其相关法律责任。
3、凡本网注明“来源:XXX(非大众网)”的作品,均转载自其它媒体,转载目的在于传递更多信息,并不代表本网赞同其观点和对其真实性负责。本网转载其他媒体之稿件,意在为公众提供免费服务。如稿件版权单位或个人不想在本网发布,可与本网联系,本网视情况可立即将其撤除。
4、如因作品内容、版权和其它问题需要同本网联系的,请30日内进行。





